Обяви За нас Контакти
Продава КЪЩА
град София, Център
935 000 €
1 828 701.05 лв.

(2 303 €, 4 504.28 лв./m2)
Цената е без ДДС
История на цената
Коригирана в 14:45 на 16 февруари, 2026 год.
Обявата е посетена 1761 пъти.
Площ:
406 m2
Двор:
20 m2
Етаж:
5
ТEЦ:
ДА
Строителство:
Тухла, Ще бъде въведен в експлоатация 2027 г.

Описание на имота:


Urban Estate представя имот, който говори за стил и изисканост - 5 етажна модерна сграда в централната част на гр. София.
Фасада с клинкерни тухли, алуминиева дограма в графитеносив цвят, френски прозорци и подчертаващи силуета детайли.
Местоположението предполага огромен потенциал - в центъра на София, до училище, парк, спирки на градски транспорт, търговски центрове и забележителности.
Сградата разполага с асансьор и стълбищна клетка, свързващи етажите. Има неголям двор към нея. Предлага се на шпакловка и замазка, но има опция за завършване и обзавеждане.
В момента имотът представлява жилищна сграда с четири апартамента. Може да бъде адаптиран към нуждите на бъдещия инвеститор като клиника, офис-сграда или друго. Има възможност партерния етаж да се оформи като приемна/рецепция, а останалите етажи - според особеностите на бизнеса, за който ще се използва.

Допълнително могат да се закупят паркоместа, гараж и складове в подземен паркинг с топла връзка към сградата.

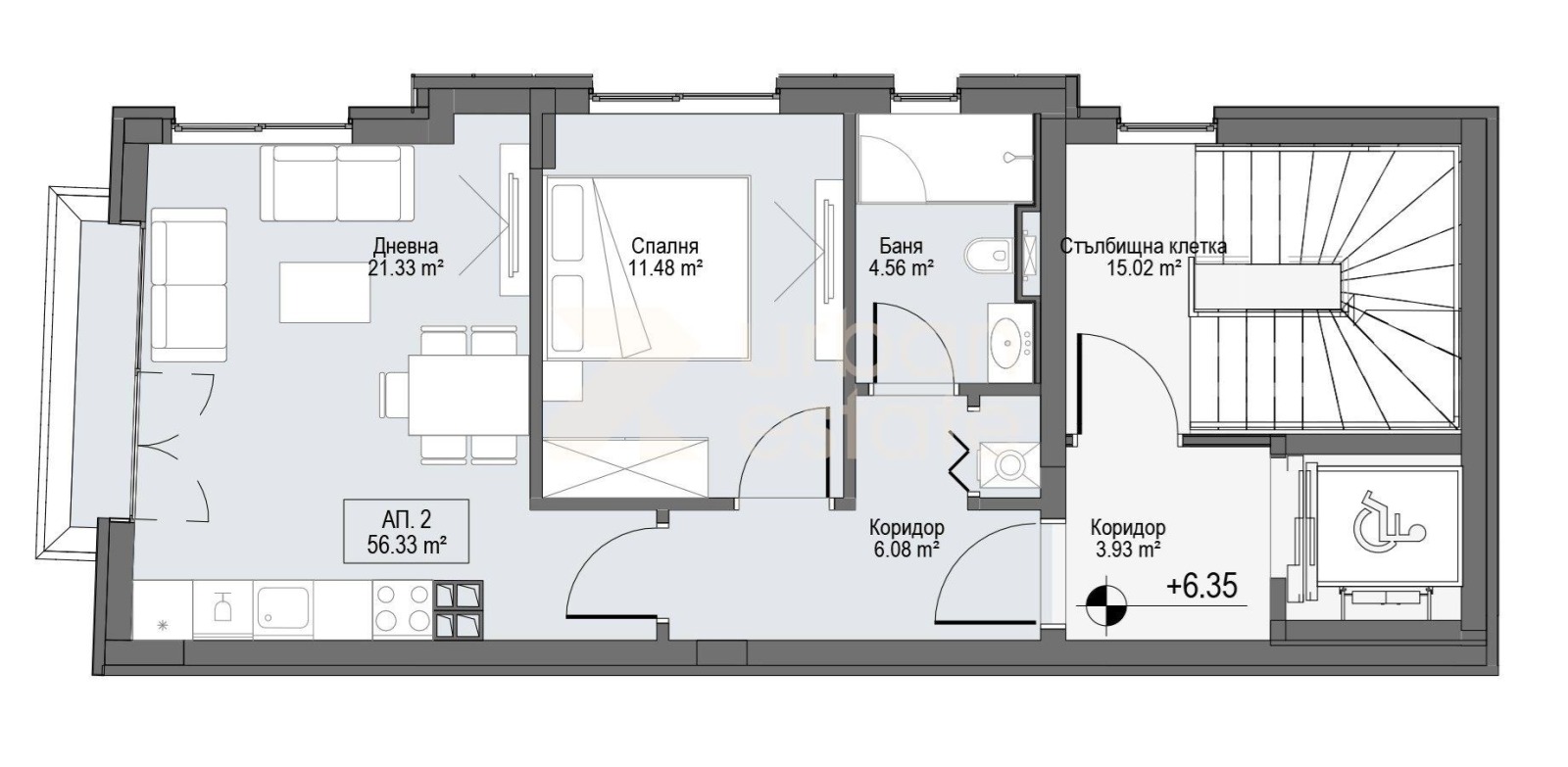
Разпределение:

Етаж 1 (партер) - офис или двустаен апартамент, състоящ се от дневна с кухненски бокс и трапезария, стая, баня с тоалетна (съобразени с нуждите на трудно подвижни хора);
Етаж 2 - двустаен апартамент (дневна с кухненски бокс и трапезария, спалня, баня с тоалетна);
Етаж 3 - двустаен апартамент (дневна с кухненски бокс и трапезария, спалня, баня с тоалетна);
Етажи 4 и 5 - мезонет с две спални, кухня с трапезария и дневна, две бани с тоалетни, балкон и две тераси.

Предимства:
Качествено ново строителство
Луксозна фасада
Централна локация
Висок инвестиционен потенциал
Асансьор
Особености
Тухла
Асансьор
С паркинг
Контрол на достъпа
За контакт:
0887709360
Брокер:
Вера Ангелова
+359887709360
Още оферти от брокера: Продава | Дава под наем | Купува | Наема
Агенция:
ЪРБАН ЕСТЕЙТ
0878920882
ЪРБАН ЕСТЕЙТ logo
В imot.bg от 2024 г.
urban02.imot.bg
Адрес:
област София, гр. София, 'Твърдишки проход' 7, ет.1
http://urbanestate.bg
ИЗПРАТИ ЗАПИТВАНЕ
ИЗПРАТИ ЗАПИТВАНЕТО

Продава КЪЩА
град София, Център
Обява: 1j176295141001546

935 000 €
1 828 701.05 лв.
История на цената
(2 303 €, 4 504.28 лв./m2)

Цената е без ДДС
ЗАПАЗИ ОБЯВАТА

Местоположение: град София, Център

Допълнителни данни за имотите в района и сравнение с други райони

Покажи

Период

и 2 месеца

* Средните цени са определени чрез медианна стойност